こんにちは。
都内に注文住宅を建て家族と暮らすmamiと申します。
元々おうちが大好きで仕事も不動産に関わる仕事をかれこれ15年ほどしてきました。
今は正社員の仕事を辞めておうちづくりのヒントを発信しています。
この記事では、実際に私たちが建てた間取りと暮らしやすさのために工夫したポイントを紹介します。
これから家づくりを考えている方の参考になれば嬉しいです。
この記事はこんな人におすすめです。
・これから注文住宅を建てようと検討している方
・時期はまだ先だけど注文住宅に興味がある方
・実際に建てた間取りや経験談を読みたい方
家族にとって最適な間取りとは
我が家は3人家族なのですが(mami、夫、娘)
家族の人数や仕事、ペットや荷物の量によって最適な間取りはさまざまです。
この間取りだから正解!というものではないため、
夫婦で希望を出し合って予算やスペースと折り合いをつけながら
少しずつ間取りを決めていきました。
結論から言うと、我が家は「将来4LDKにできる3LDK+ルーフバルコニー(延床100平米)」にしました。
引っ越して1ヶ月ほどですが、生活動線も快適で今のところ満足しています。

早速各階の間取りと特徴についてお話ししていきます♪
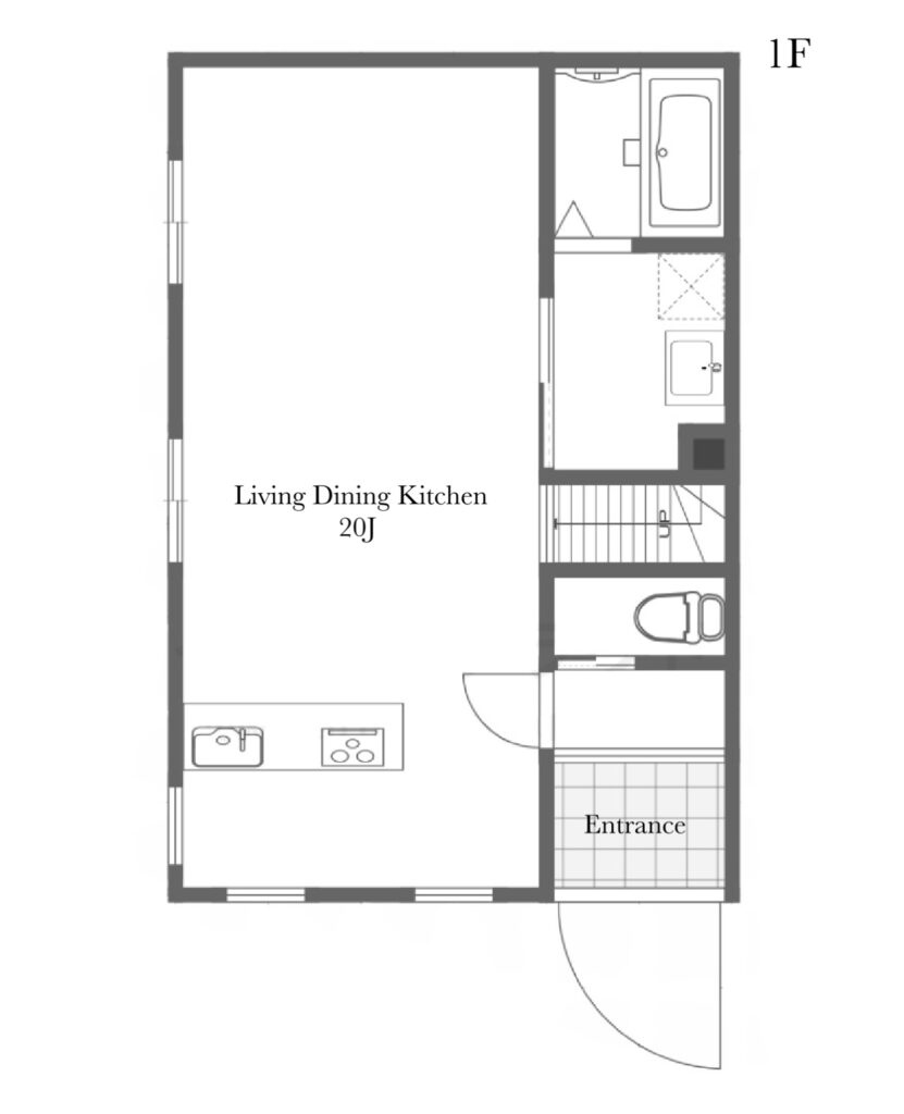
1階の間取り
1階の間取りは玄関、トイレ、洗面所、お風呂、リビングを配置しました。

玄関は平均的なサイズのもので収納は少なめかなと思います。
リビングに広さを全振りした結果です…。
その代わりに物置を敷地内に設置したので使う頻度の減ったベビーカーやスポーツグッズ、
バケツやホースなどはそちらへ収納してスッキリと見えるようにしました。

トイレ、洗面所、お風呂も平均的なサイズ感です。
洗面所は収納棚と床下収納を追加し限られたスペースでもごちゃつかないように工夫しました。
そしてリビング!
家族が一番長く過ごす場所ですし来客もリビングでお迎えする予定なので
とにかく広く明るく見えるようにこだわりました。
また家に帰ってきたらリビングを通って
家族と顔を合わすことができるようにリビングインの階段に設計。

広く見えるようにしたポイント
- 水回りを一列にしてリビングは梁なし20帖のスペースを確保。
- 天井高は2.5mにし開放感があるように。
- フローリングや壁紙はホワイトを基調にして視覚的にも明るく広く見えるように
- フルフラットのペニンシュラキッチンを採用しキッチンとリビングダイニングの隔たりをなくす
結果広々とした明るいリビングになり大満足です🎵
2階の間取り
2階は寝室と各個人の部屋、キッズスペースを配置しました。
(夢だった自分の部屋も作ることができました
主寝室兼キッズスペース

まず特徴的なのが10.6帖の広い洋室。
将来的に壁を追加工事して部屋を分けることができるつくりは
家づくりをするかなり前から考えていました。
子供が成長して自分の部屋が欲しくなった時に追加工事を考えていますが
(なんとなく中学生くらいからかな?と考えているけど実際どうなんだろう…)
それまでは広々と遊ぶこともできる自由空間にしています。
しばらくは主寝室兼キッズスペース予定です。
引っ越してきて娘も「広ーい」と喜んでいたお気に入りスペースなので
注文住宅ならではの設計で気に入っています。
夫の部屋(6帖)
仕事柄書類が多いため奥行きもある広めのクローゼットを設置。
夜中まで仕事をしていることもあるため防音シートを壁に埋め込みました。
mamiの部屋(4.5帖)
家を建てるならどうしても欲しかった自分だけの部屋。
コンパクトだけど主寝室にベッドがあるので十分な広さです。

子供を寝かしつけた後、自分の部屋でのんびり飲み物を飲みながら
動画を見たりブログを書く時間が息抜きになっています。
屋上の間取り

夫婦で絶対にこれだけはつけたい!と話していたルーフバルコニーを念願叶って付けることができました。
まだ部屋づくりが追いついていませんが、カフェテーブルを置いて休日ランチやお茶をしたり、夏はプールを出したり、望遠鏡で星を見たり使い方は何通りもあるので今からとても楽しみにしています🎵

まとめ
間取りを考えるときはワクワクする反面、
「本当にこの間取りでいいのかな?」と不安もつきもの。
机上で決めていかないといけないので色んな部屋を仕事で内覧してきた私でも
「収納スペースはこれで足りるかな」
「暮らしやすい導線になっているかな」
「きちんと採光はとれているかな」
など悩みは尽きませんでした。
そんな時の誰かの参考になるように、と思い記事を書いています。
私のこの記事もどなたかの家づくりを後押しできる
なにか参考になれば幸いです。
せっかくの家づくり、楽しんでいきましょう♪

コメント